Property Details
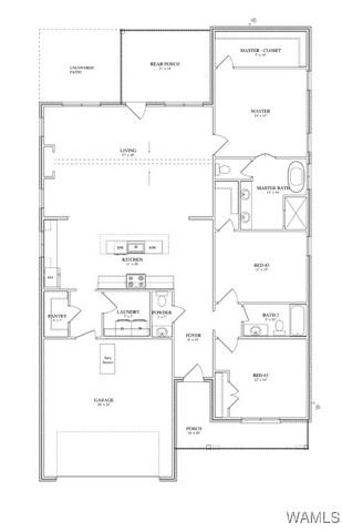
Introducing The Cove, an all-new, highly versatile floor plan currently under construction in the rapidly growing Neptune’s Cove neighborhood! This thoughtfully designed three-bedroom, 2.5-bathroom home offers space, style, and functionality all on one single level. This open-concept design unites the great room and dining area under a cathedral ceiling, featuring a gas-log fireplace and easy access to covered and uncovered patios for effortless entertaining. The jaw-dropping kitchen highlights quartz countertops, a gas range, ample cabinetry, and a massive pantry. The luxurious primary suite showcases a freestanding soaking tub, zero-entry tile shower, and a spacious walk-in closet. Neptune’s Cove residents enjoy lighted walking trails, a playground, a charming gazebo, and a scenic neighborhood lake. Don’t miss the chance to make this new construction home yours! Estimated completion end of October.
Quick Facts
9578 Crete CircleTuscaloosa, AL 35406
MLS #169486
Listed 4 months ago
$459,900
Features
- Type: SingleFamilyResidence
- Acreage: 0.16
- Garage: Yes
- Garage Spaces: 2.0
- Interior Features: Pantry, VaultedCeilings, WalkInClosets
- Cooling: OneUnit
- Year Built: 2025
- Appliances: Dishwasher, GasOven, GasRange, GasWaterHeater, Microwave, TanklessWaterHeater
- Construction: Brick
- Exterior Features: RainGutters
- Fireplace: GasLog, GreatRoom
- HOA Amenities: Playground,Trails
- HOA Fee: 500.0
- HOA Term: Annually
- Laundry: LaundryRoom
- Levels: One
- Porch/Patio: Covered, Porch
- Style: Other
- Roof: Composition, Shingle
- Security Features: SmokeDetectors
- Sewer: Connected
- Utilities: SewerConnected
- Waterfront: Yes