Property Details
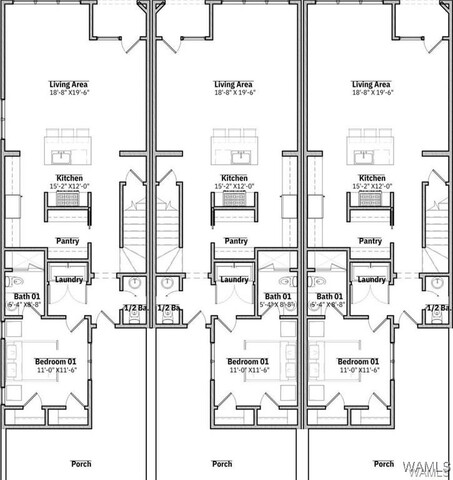
Currently under construction and set for completion in Summer 2026, 1403 22nd Avenue will deliver brand-new construction just minutes from The University of Alabama. This 3-bedroom, 3.5-bath townhome offers an open-concept design with durable LVP flooring and stylish modern finishes throughout. The kitchen will feature a gas range, while the main-level master suite includes a spacious walk-in closet and a beautiful walk-in shower. Upstairs, two additional bedrooms each include private baths, providing comfort and privacy. With its prime location near UA and low-maintenance lifestyle, this home is a rare opportunity for students, investors, or anyone seeking a new residence close to campus. Photos shown are of a similar unit across the street; finishes and floor plan will differ slightly.
Quick Facts
1403 22nd AvenueTuscaloosa, AL 35401
MLS #171311
Listed 12 days ago
$689,900
Features
- Type: Townhouse
- Acreage: 0.0
- Interior Features: CeilingFans, GraniteCounters, PrimaryDownstairs, OpenConcept, SolidSurfaceCounters, CableTv, WalkInClosets
- Cooling: Electric, OneUnit
- Heating: Electric
- Year Built: 2026
- Appliances: Dishwasher, ElectricWaterHeater, GasOven, GasRange, Microwave, Refrigerator
- Construction: Brick
- Exterior Features: RainGutters
- Fireplace: None
- HOA Term: Monthly
- Laundry: Inside,LaundryRoom
- Levels: Two
- Roof: Composition, Shingle
- Security Features: SmokeDetectors
- Sewer: Connected
- Utilities: CableAvailable, SewerConnected
- Waterfront: Yes
- Windows: DoublePaneWindows