Property Details
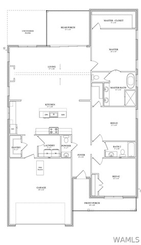
Your brand new home in Neptune's Cove is under construction with an estimated completion of late June! Check out this thoughtfully designed three-bedroom, 2.5-bathroom home that offers space, style, and functionality all on one single level. This open concept design unites the great room and dining area under a cathedral ceiling, featuring a gas-log fireplace and easy access to covered and uncovered patios for effortless entertaining. The jaw-dropping kitchen highlights quartz countertops, a gas range, ample cabinetry, and a massive pantry. The luxurious primary suite showcases a freestanding soaking tub, large tile shower, and a spacious walk-in closet. Neptune’s Cove residents enjoy lighted walking trails, a playground, a charming gazebo, and a scenic neighborhood lake. Don’t miss the chance to make this new construction home yours!
Quick Facts
9604 Crete CircleTuscaloosa, AL 35406
MLS #174352
Listed about 7 hours ago
$469,900
Features
- Type: SingleFamilyResidence
- Acreage: 0.17
- Garage: Yes
- Garage Spaces: 2.0
- Interior Features: Pantry, VaultedCeilings, WalkInClosets
- Cooling: OneUnit
- Year Built: 2026
- Appliances: Dishwasher, GasOven, GasRange, GasWaterHeater, Microwave, TanklessWaterHeater
- Construction: Brick
- Exterior Features: RainGutters
- Fireplace: GasLog, GreatRoom
- HOA Amenities: Playground,Trails
- HOA Fee: 500.0
- HOA Term: Annually
- Laundry: LaundryRoom
- Levels: One
- Porch/Patio: Covered, Porch
- Style: Other
- Roof: Composition, Shingle
- Security Features: SmokeDetectors
- Sewer: Connected
- Utilities: SewerConnected
- Waterfront: Yes