Property Details
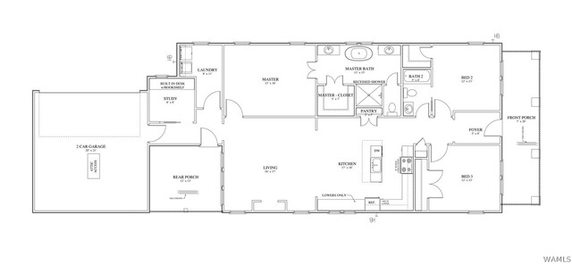
Completed home pictures are sample pictures of previously built floor plan, actual selections will vary. Under construction on one of the last lots in Stillwater, this new home will be move-in ready by end of September! Step inside to a welcoming open concept living space highlighted by a gorgeous gas-log fireplace, quartz countertops, and beautiful designer lighting throughout. The kitchen offers abundant cabinet storage, a sleek gas range, and a sizable pantry, while the primary suite features a luxurious tile shower, large soaking tub and separate vanities. Enjoy effortless living with a covered back porch for entertaining, a rear-entry garage, the neighborhood pool only steps away, and full lawn care included. This is one of the last homesites in Stillwater, make this one yours today!
Quick Facts
1605 Stillwater CircleTuscaloosa, AL 35406
MLS #174417
Listed 1 day ago
$559,900
Features
- Type: SingleFamilyResidence
- Acreage: 0.14
- Garage: Yes
- Garage Spaces: 2.0
- Interior Features: CeilingFans, HomeOffice, OpenConcept, Pantry, WalkInClosets
- Cooling: OneUnit
- Year Built: 2026
- Appliances: Dishwasher, GasOven, GasRange, Microwave, TanklessWaterHeater, WaterHeater
- Construction: LapSiding,Stone
- Exterior Features: RainGutters
- Fireplace: GasLog, LivingRoom
- HOA Amenities: MaintenanceGrounds,Pool
- HOA Fee: 175.0
- HOA Term: Monthly
- Laundry: MainLevel,LaundryRoom
- Levels: One
- Porch/Patio: Covered, Patio
- Style: Other
- Roof: Composition, Shingle
- Sewer: Connected
- Utilities: SewerConnected
- Waterfront: Yes